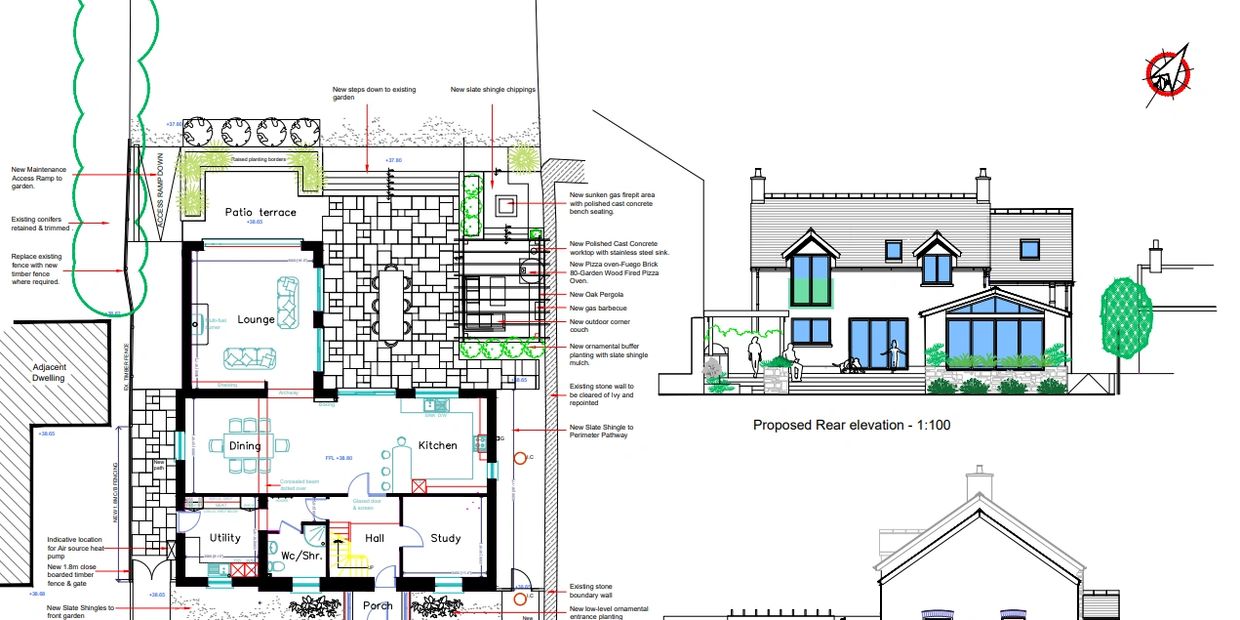
This project saw the re-development of a bungalow in St. Davids, focusing on a new front garden and a tiered private rear garden. Key features incorporated a pergola with outdoor kitchen and barbecue, an al fresco dining area, sunken fire pit, Swedish hot tub and raised planters to provide structure and colour.
Churchill House, a Grade II listed Georgian Rectory built in 1832, is located in Treffgarne. Landscaping included designing and building a contemporary garden with terraced beds, retaining walls, and stairs to access the sloping banks and various outdoor spaces.
New Affordable Housing development including 21 apartments and bungalows, set in the village of Eglwyswrw. The work included retaining and protecting existing boundary trees and hedges with additional soft landscaping including native specimen trees design new boundary hedges and ornamental borders.
The design aimed to respect the character and heritage of this traditional 19th-century fisherman’s cottage while addressing practical challenges of access and parking. The soft landscaping strategy incorporated ornamental shrubs and groundcovers suited to the coastal environment.
New Affordable Housing development including 45 apartments and houses, set on a disused industrial site . The design brief was to develop a hard and soft landscape setting which creates a unique sense of identity while still keeping with the local vernacular.
This project merged two plots: an industrial yard and the 19th-century Old Pottery site. It created six affordable units and four residences, including the restored Pottery building. The landscape preserved hedgebanks, added native planting, and reconstructed a dry-stone wall along Parrog Road.
This project designed a garden for a Grade II listed fisherman's cottage in Abereiddy, near the Blue Lagoon. It features "outdoor rooms" including a sunken fire pit, driftwood outdoor shower, raised viewing deck, and pergola-covered dining patio. Stairs were replaced with ramps for accessibility, with subtle level adjustments enhancing usability.
Located in Pembrokeshire Coast National Park, this project integrates with the landscape using traditional hedgebanks, native trees, and ornamental borders for seasonal interest. A planned second phase will add 14 units while preserving ecological sensitivity.
Ty Sanctaidd is a uniquely designed Welsh Roundhouse inspired by the natural spiral form of an ammonite. This ethically driven project prioritizes local materials and craftsmanship, featuring lime-clad hay bale walls and a cedar shingle roof with elegant copper detailing.
This project balances aesthetics and function, creating a two-level landscape with stair and ramp access. Sustainable drainage, including rain gardens and an attenuation pond, enhances biodiversity. Native trees, hedgerows, and a central water feature create a tranquil setting.
The Old Coach House consists of two former barns which were connected to form a residential dwelling. The existing driveway is situated directly in front of the house thereby posing a constraint within the immediate landscape. The brief was to design a set of boundary walls which aid in creating an intimate private space within the external courtyard area. The walls allowed for the levels to be improved and for the creation of new access routes to different areas within the garden. Additionally, raised planters and new raingardens with ornamental planting was incorporated within the scheme. Local stone and materials were used for the construction, plant material was also locally sourced.
1/6
1/6
1/5
1/6
1/5
1/6
1/5
1/6
1/6
1/5
1/6
1/5
1/6

For more details about us and our projects, please get in touch with us.